Zasobnik ciepłej wody
Alternative title
Hot water tank
Type
Patent
Subtype
Invention
Authors/Creators
Publisher
Urząd Patentowy Rzeczypospolitej Polskiej
Date
2024
Abstract PL
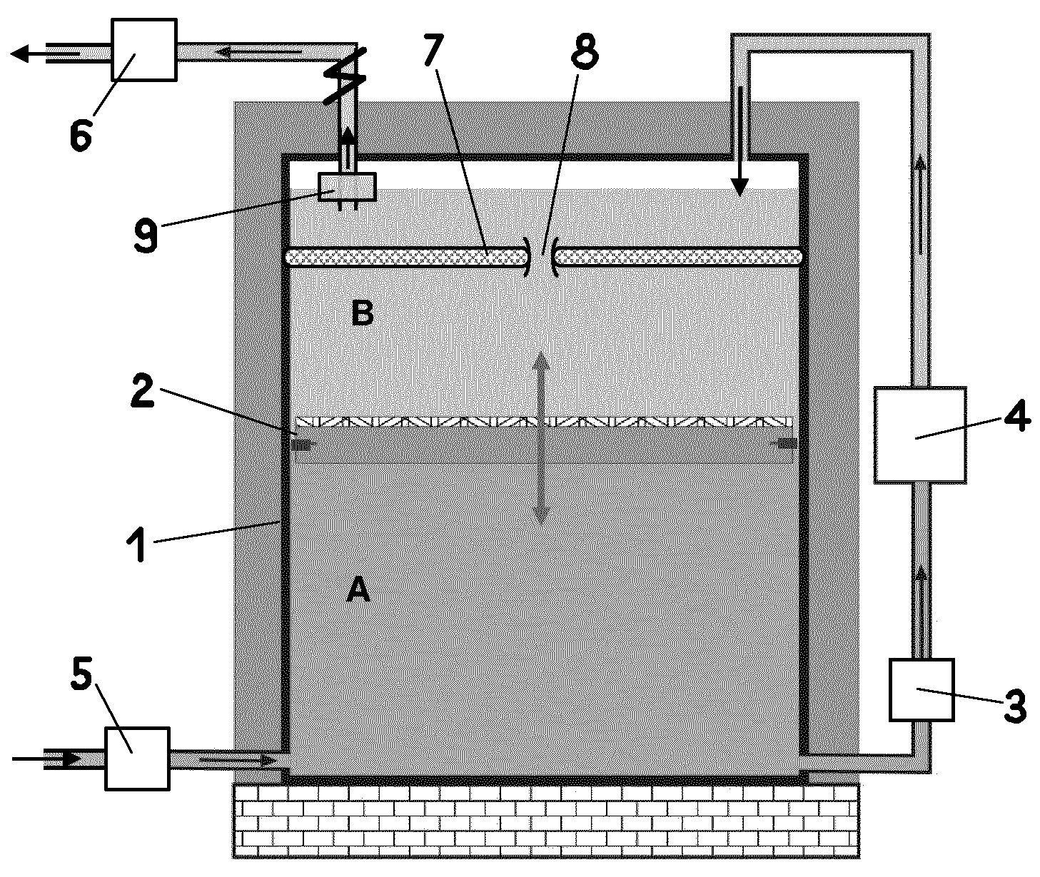
Przedmiotem zgłoszenia jest zasobnik ciepłej wody składający się z izolowanego termicznie dwukomorowego zbiornika wody (1) w postaci pionowo ustawionego walca albo graniastosłupa o ścianach bocznych prostopadłych do podstaw, w którym znajduje się zamocowana na prowadnicach poziomo ułożona, sztywna, uszczelniona względem ścian bocznych i przemieszczalna w pionie termoizolacyjna ruchoma przegroda (2), która dzieli zbiornik wody (1) na komorę dolną (A) zimnej wody i komorę górną (B) ciepłej wody. Poza zbiornikiem wody (1) komora dolna (A) zimnej wody połączona jest z komorą górną (B) ciepłej wody poprzez pompę obiegową (3) i podgrzewacz wody (4). Do komory dolnej (A) zimnej wody podłączona jest pompa zasilająca (5), a do komory górnej (B) ciepłej wody podłączona jest pompa odprowadzająca (6). Zgłoszenie charakteryzuje się tym, że ruchoma przegroda (2) posiada średnią gęstość zbliżoną do gęstości wody, w komorze górnej (B) ciepłej wody znajduje się stała przegroda (7) z deflektorem (8), zaś pompa odprowadzająca (6) podłączona jest poprzez górną ścianę zbiornika wody (1) do rury teleskopowej zamocowany jest pływak (9).
Date of filing with the Polish Patent Office or with the competent office abroad
2024-09-25
Date of publication in ‘WUP’ or equivalent foreign bulletin
2025-09-15
Exclusive right number
Pat.247942
Statistics
Polak, W., & Połednik, B. (2024). Zasobnik ciepłej wody. Urząd Patentowy Rzeczypospolitej Polskiej. https://hdl.handle.net/20.500.14629/18632

Loading...
Files
miniaturka.jpg
JPG 743.27 KB
Licence
Accessibility issue?Request a WCAG-compliant file
Publication available in collections: