Urządzenie do wytwarzania elementów kształtowych
Alternative title
Device for manufacturing shaped elements
Type
Patent
Subtype
Invention
Authors/Creators
Publisher
Urząd Patentowy Rzeczypospolitej Polskiej
Date
2021
Abstract PL
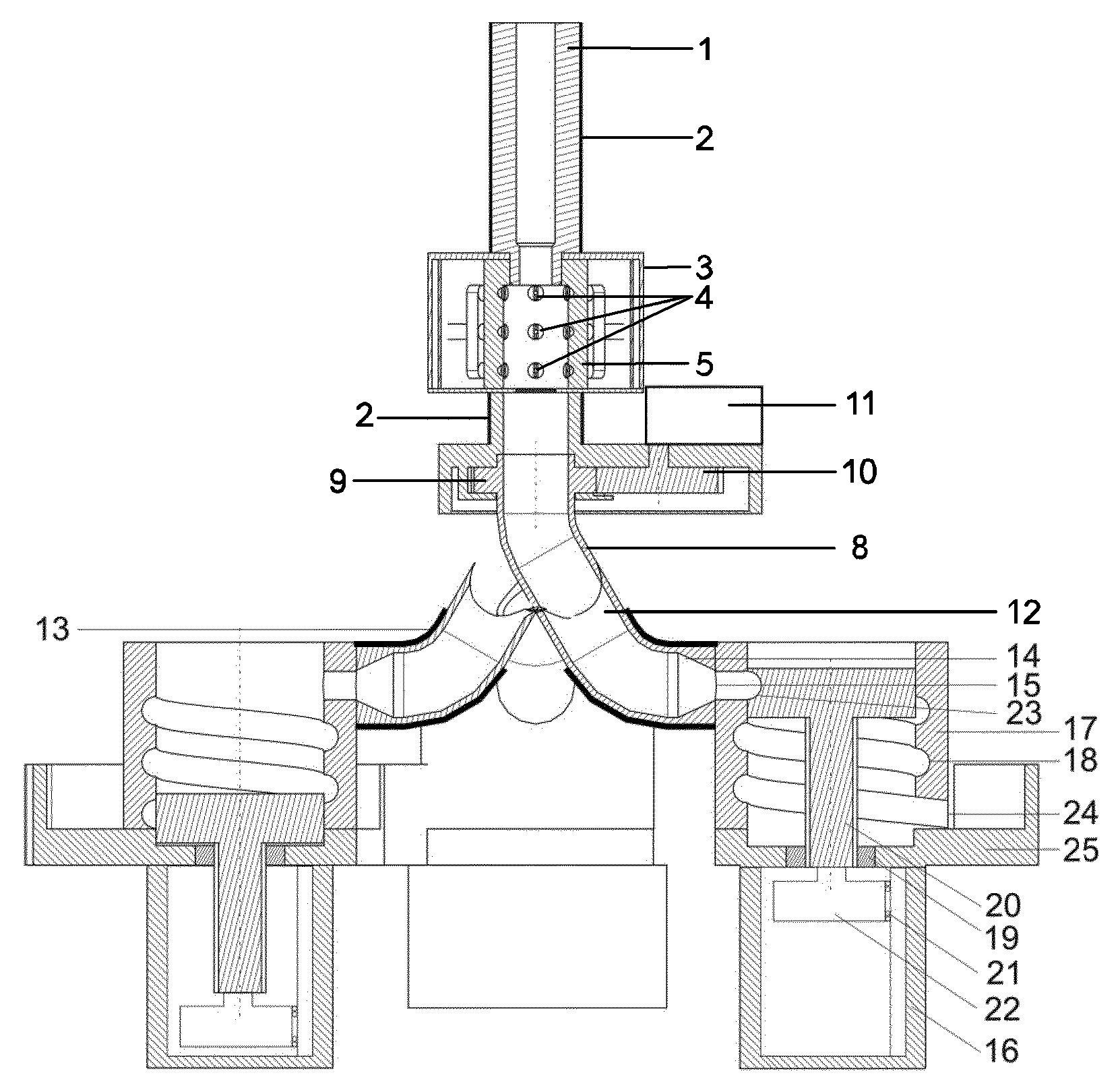
Urządzenie do wytwarzania elementów kształtowych posiadające kanał wlotowy (1) w kształcie walca, do którego zewnętrznych powierzchni zamocowane są grzałki elektryczne otokowe (2), zaś kanał wlotowy (1) połączony jest na stałe z komorą powlekającą (3) w kształcie walca, a na wewnętrznej powierzchni komory powlekającej (3) zamocowane są dysze natryskowe (4) w układzie co 45° przy czym kanał wlotowy (1) połączony jest z jednym końcem tulei (5), która zamocowana jest wewnątrz komory powlekającej (3), natomiast w górnej części tulei (5) od strony kanału wlotowego (1) znajduje się otwór w którym zamocowana jest dysza podająca, charakteryzuje się tym, że tuleja (5) drugim końcem połączona jest z górnym końcem rozdzielacza (8). Na zewnętrznej części powierzchni rozdzielacza (8) zamocowane jest pierwsze koło zębate (9), które połączone jest z drugim kołem zębatym (10) połączonym z silnikiem elektrycznym (11). Dolny koniec rozdzielacza (8) zagięty jest pod kątem 45° względem osi kanału doprowadzającego (1). Rozdzielacz (8) dolnym końcem połączony jest rozłącznie z czterema jednakowymi kanałami doprowadzającymi (12).
Date of filing with the Polish Patent Office or with the competent office abroad
2021-12-20
Date of publication in ‘WUP’ or equivalent foreign bulletin
2023-10-16
Exclusive right number
Pat.243838
Statistics
Klepka, T., Longwic, F., & Białasz, S. (2021). Urządzenie do wytwarzania elementów kształtowych. Urząd Patentowy Rzeczypospolitej Polskiej. https://hdl.handle.net/20.500.14629/17800

Loading...
Files
miniaturka.jpg
JPG 452.92 KB
Licence
Accessibility issue?Request a WCAG-compliant file
Publication available in collections: